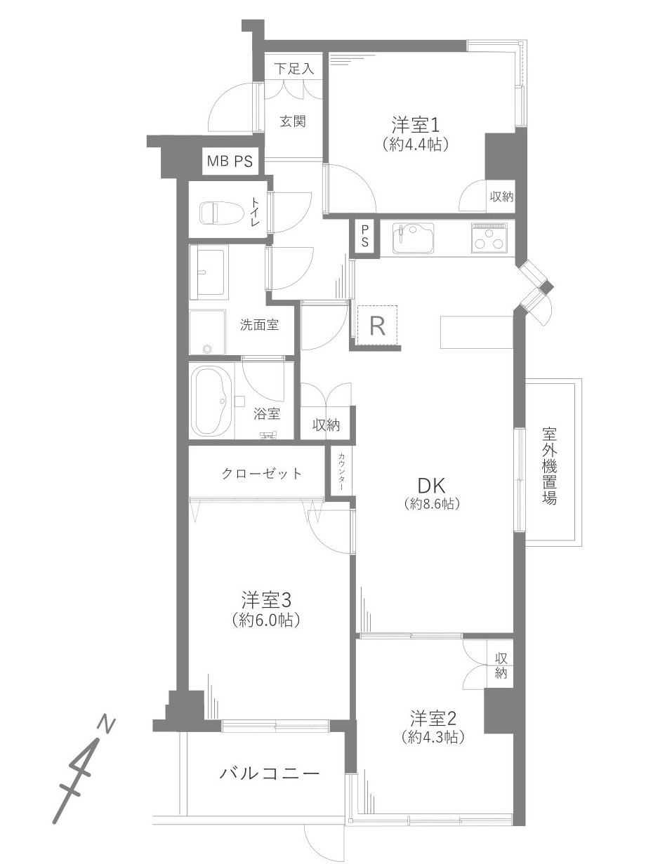
ライオンズガーデン赤塚公園の基本情報
- 物件名
- ライオンズガーデン赤塚公園
- 価格
- 4,790万円
- 築年月
- 1994年2月(築31年)
- 総戸数
- 42戸
ライオンズガーデン赤塚公園の詳細情報
- 設備条件
-
- 駐輪場
- 設備(その他)
-
-
-
- 駐車場/月額
- -/ 有 16,000円/月
- 土地権利
- 所有権
- 国土法届出
- 不要
- 用途地域
- 第一種中高層住居専用
- 戸数
- 42戸 / -
- 管理形態
- 管理会社に全部委託
- 管理員の勤務形態
- 日勤
- 管理会社
- 株式会社大京アステージ
- 取引態様
- 売主
- 引渡し
- 即時
ライオンズガーデン赤塚公園で募集中の物件
近隣の物件
ライオンズガーデン赤塚公園
