/
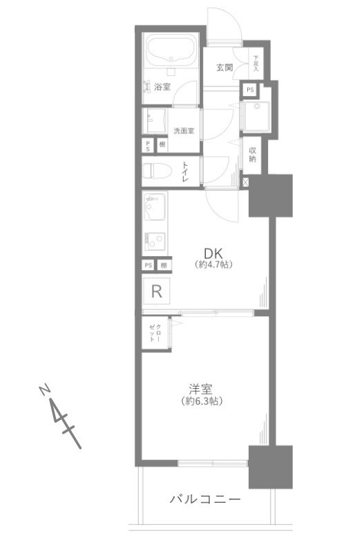
【間取り】
- 専有面積
- 44.78㎡
- 築年月
- 1979年10月(築46年)
-
浴室乾燥機
- 管理費
- 7,000円
- 修繕積立金
- 10,750円
- 修繕積立基金
- -
- 間取り / 詳細
- 2DK
- 向き
- 南東
- 専有面積
- 44.78㎡
- バルコニー面積
- 6.72㎡
- その他面積
- -
-
- - 所在階 / 階建て
- 2階 / 10階建
- 建物構造
- 鉄骨鉄筋コンクリート
- 築年月
- 1979年10月(築46年)
- 種別
- 中古マンション
- 土地権利
- 所有権
- 土地
(敷金 / 保証金) - - / -
- 国土法届出要否
- 不要
- 接道状況
- -
- 用途地域
- 準工業
- 地勢
- -
- 都市計画
- -
- 現況
- 空家
- 引渡し
- 即時
- 取引態様
- 売主
- 棟総戸数
- 169戸
- 管理形態
- 管理会社に全部委託
- 管理会社 /
管理組合有無 - 株式会社東急コミュニティー / -
- 取引条件の
有効期限 - 2026年02月04日
- 設備条件
-
- リフォーム済 / システムキッチン / 追焚機能浴室 / 浴室乾燥機 / 温水洗浄便座
- 設備(その他)
-
-
-
- 物件番号
- 99058730
- 管理コード
- 370466
- 建築確認番号
- -
- 情報更新日
- 2026年01月21日
- 次回更新予定日
- 2026年02月04日
- 取扱会社
-
- 株式会社イーグランド 本店
- 東京都千代田区神田美土代町1番地 WORK VILLA MITOSHIRO 4階
- TEL:03-3219-5015
- 国土交通大臣 (4) 第7977号
一般建設業 東京都知事 許可(般-5)第139885号
不動産特定共同事業 東京都知事第68号 - 東京都宅地建物取引業協会
リノベーション協議会
- 備考
- ■ペット:不可
■組合費:300円/月 - 月々の支払額
- 9.6円
- 購入希望物件価格
-
万円
- 頭金
-
万円
- 金利
-
%
- 返済額(ボーナス1回分)
-
万円
- 返済期間
-
年
物件の特徴
セールスポイント
■4駅4路線利用可能な好立地
■総戸数169戸の大規模マンション
■管理体制良好(東急コミュニティー)
基本情報
設備条件
その他
支払いシミュレーション
※ボーナスは自動で年2回分で計算されます。
近隣の物件
目白ガーデニア
4,699万円
7,000円
2DK(44.78㎡)
PAGE
TOP
TOP
