/
【外観】
- 物件名
- 杉並区桃井二丁目戸建
- 価格
- 7,499万円
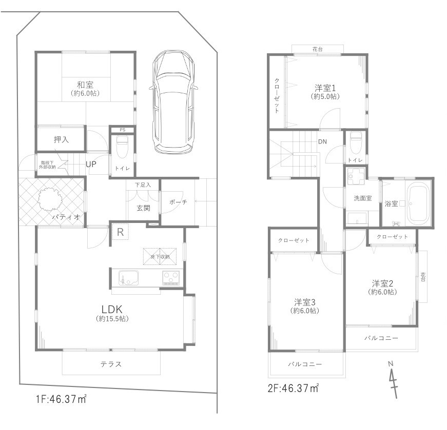
- 建物面積
- 75.95㎡
- 土地面積
- 20.33坪(67.21㎡)
- 築年月
- 2015年5月(築10年)
- 総戸数
- -
- 設備条件
-
- 設備(その他)
-
-
-
- 駐車場/月額
- -/ 有(1台分)
- 土地権利
- 所有権
- 国土法届出
- 不要
- 用途地域
- 第一種低層住居専用
- 取引態様
- 売主
- 引渡し
- 即時
杉並区桃井二丁目戸建の基本情報
杉並区桃井二丁目戸建の詳細情報
杉並区桃井二丁目戸建で募集中の物件
近隣の物件
よく見られている物件
杉並区桃井二丁目戸建
PAGE
TOP
TOP
