3件
-
4,399万円
- / 80.25㎡ / 3LDK /築24年 /2階建
- 都市ガス
- リフォーム済
- システムキッチン
- 浴室乾燥機
- 温水洗浄便座
- 追焚機能浴室
■最寄りバス停「ガード下」より吉祥寺・三鷹駅までバス便利用可
■約17帖の広々LDK -
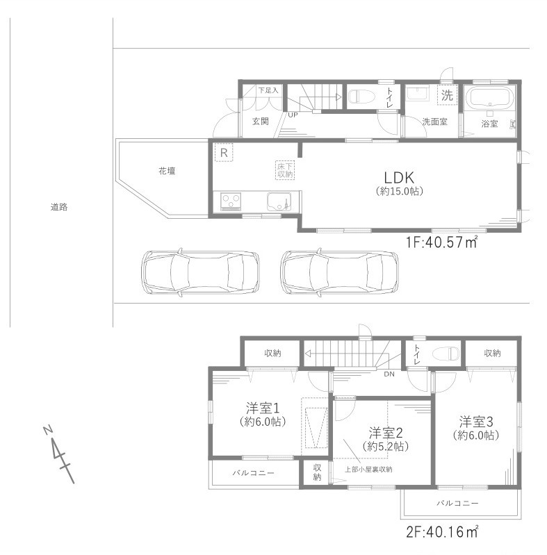
6,699万円
- / 80.73㎡ / 3LDK /築15年 /2階建
- 駐車2台可
- 都市ガス
- リフォーム済
- システムキッチン
- 温水洗浄便座
- 追焚機能浴室
■駐車スペース2台分有(車種による)
■全居室南向き採光のため、日当たり良好!

■中央線「武蔵境」駅「吉祥寺」駅へのバス便豊富(吉祥寺駅バス33分)
■公園や緑あふれる住環境
徒歩10分圏内に小金井公園、田無市民公園、おおぞら公園、狭山・境緑道等