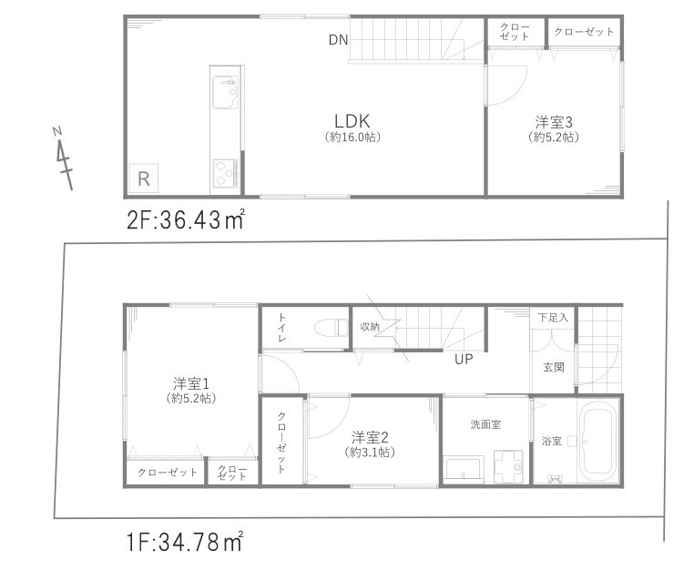
1件 新着順 安い順 高い順 おすすめ順 住所ごと順 建物面積の広い順 土地面積の広い順 築年数が新しい順 中古一戸建 船橋市金杉 船橋市金杉八丁目戸建 2,090万円 - / 71.21㎡ / 3LDK /築1年 /2階建 京成電鉄松戸線「滝不動」駅 徒歩20分 都市ガスシステムキッチン食器洗い乾燥機公共下水 ■未入居物件 ■閑静な住宅街 ■約16.0帖の開放感のあるLDK 京成電鉄松戸線の掲載物件の価格相場 1R ~ 1K 1DK ~ 1LDK 2K ~ 2LDK 3K ~ 3LDK 4K ~ 4LDK以上 価格相場 - - - 2090万円 - 募集件数 - - - 1件 - 1
■未入居物件
■閑静な住宅街
■約16.0帖の開放感のあるLDK