2件
-
3,799万円
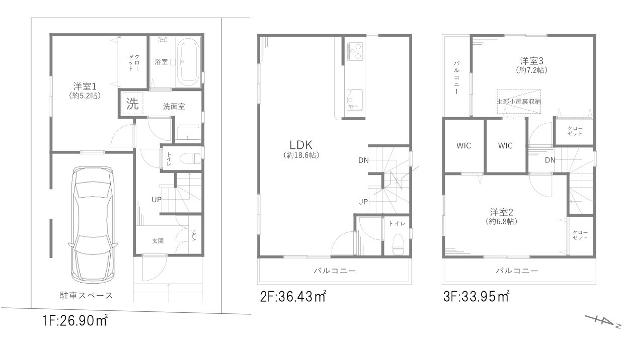
- / 97.28㎡ / 3LDK /築8年 /3階建
- 都市ガス
- リフォーム済
- ウォークインクロゼット
- 食器洗い乾燥機
- 浴室乾燥機
- 温水洗浄便座
■平成29年築、リフォーム済み住戸(アフターサービス保証付)
■目の前に桜並木が広がる住まいです
2件
3,799万円
- / 97.28㎡ / 3LDK /築8年 /3階建
■平成29年築、リフォーム済み住戸(アフターサービス保証付)
■目の前に桜並木が広がる住まいです
該当物件は
2件
おすすめこだわり特集
■2020年築の4LDKオール電化住宅
■小学校まで徒歩9分
■縦列2台駐車可(車種による)